This page contains existing condition surveys for renovation and home addition projects. Software used: AutoCAD, Revit, and SketchUp. The location of the projects and other identifying information have been omitted from the drawings.
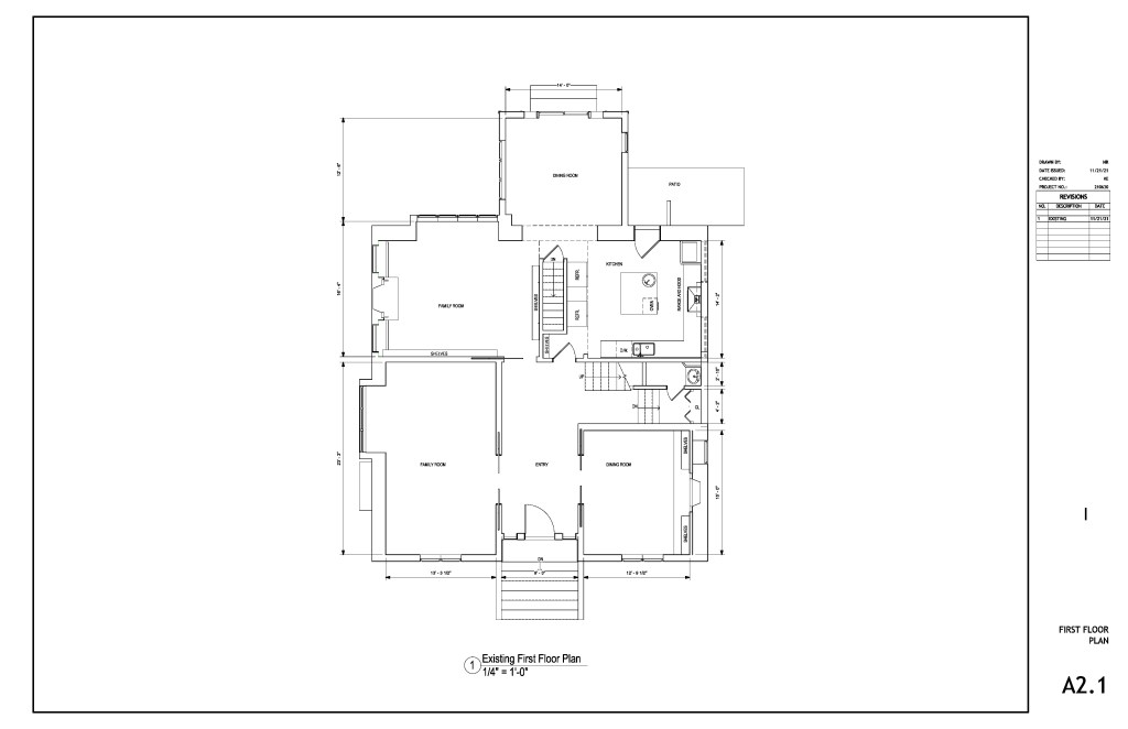
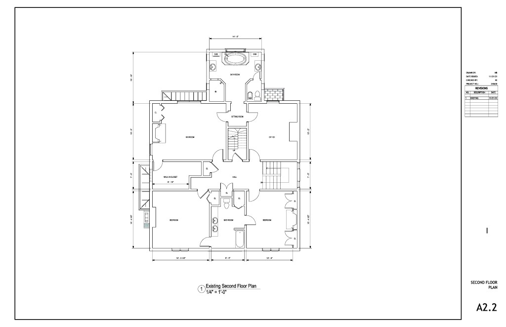
Existing condition survey for a home renovation. I was commissioned to survey just the first and second floors then create existing condition plans, demo plans, and proposed plans. But I loved the house so much I ended up drawing the entire place in Revit. Plan drawings coming soon.






Animated Walkthroughs – created using Revit. ‘Click’ on image to view animation


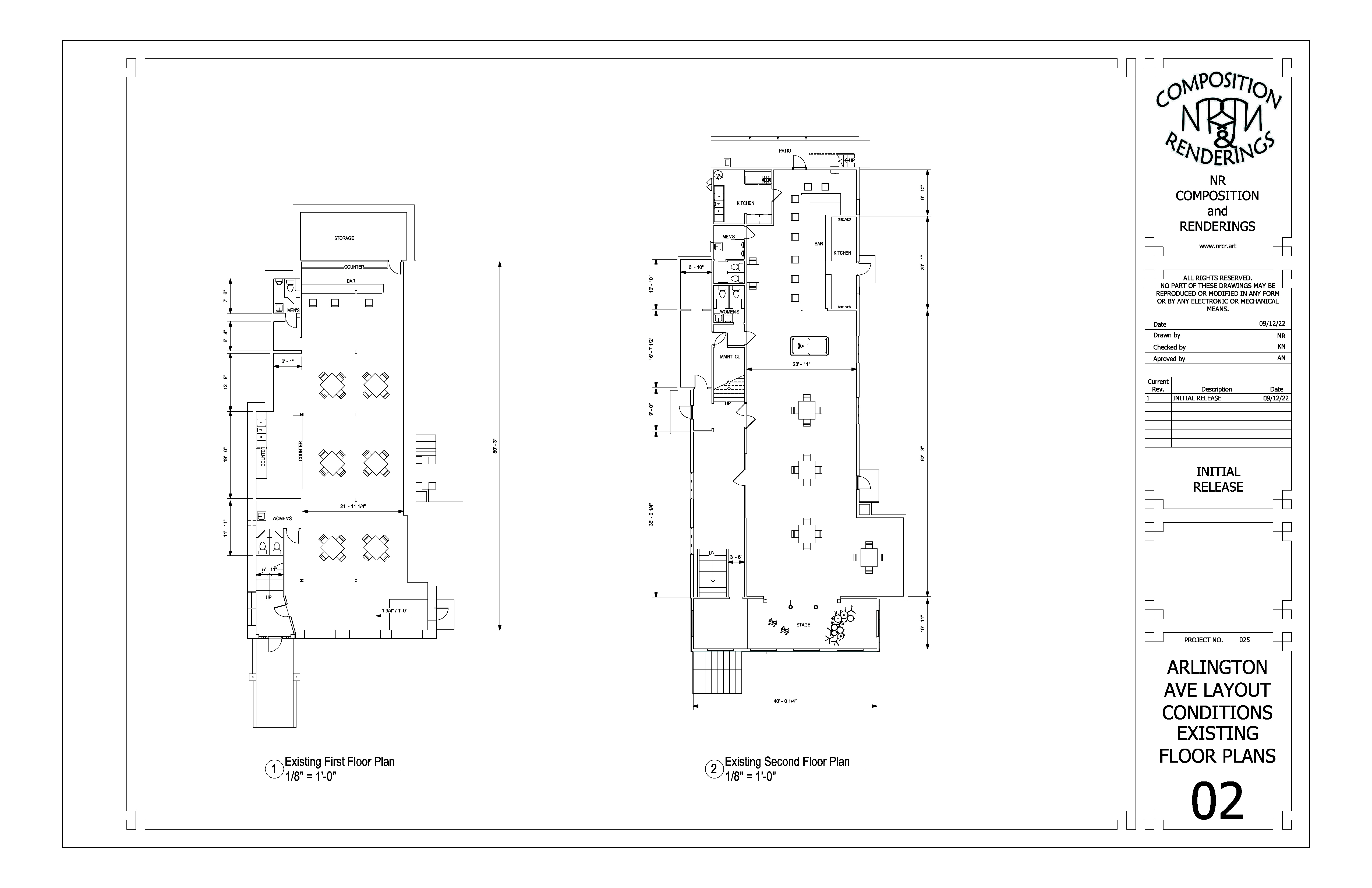
Existing condition survey and staging layout drawing of a commercial property. I was asked to perceive and execute a layout to utilize the space shown. All work done in Revit R22.






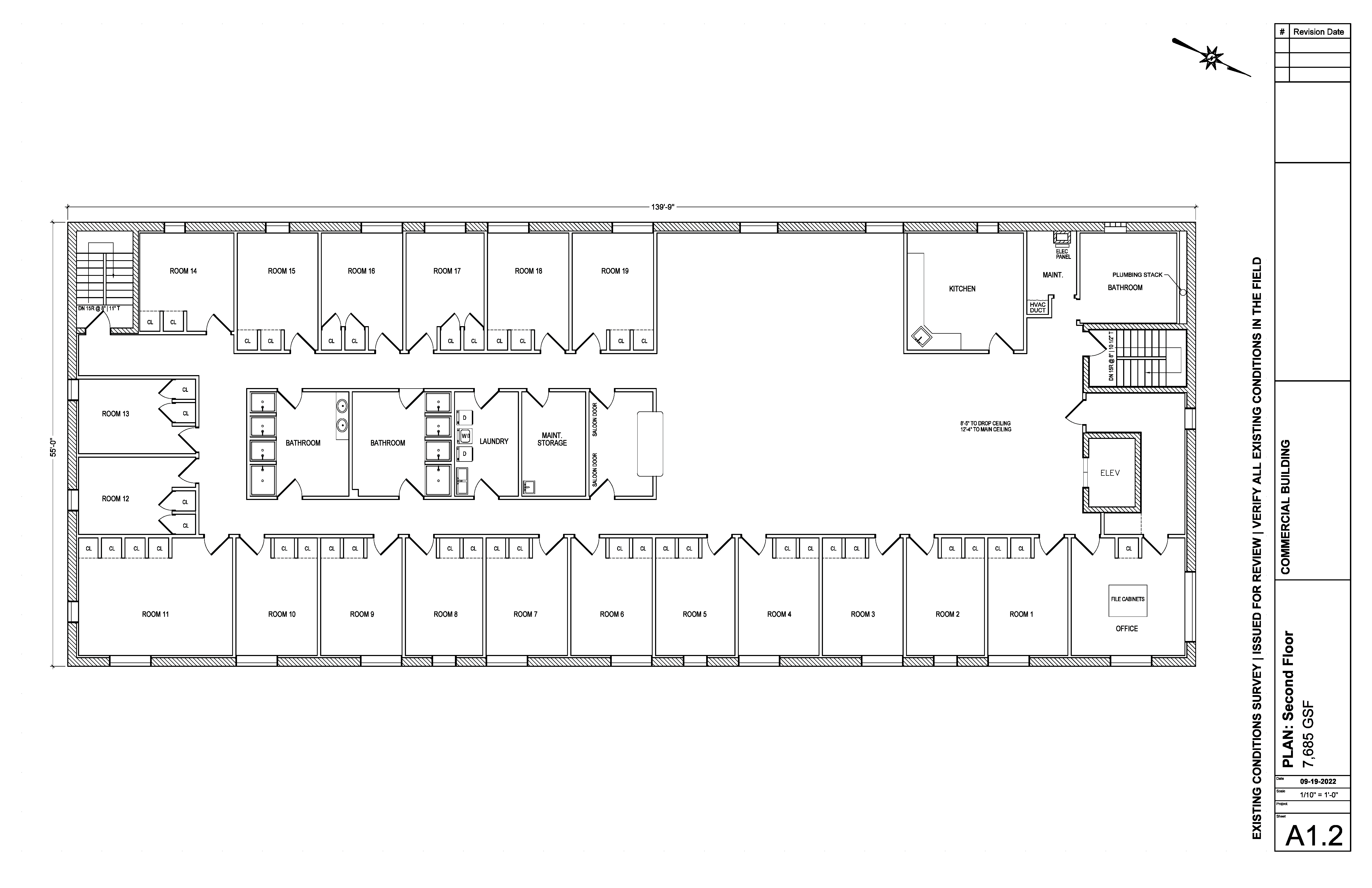
Existing condition survey of a former retirement center. These drawings were requested to have a sprinkler system installed and also for property appraisement.


Existing condition survey (measuring of the floor plans) of an investment property. The drawings were created using Autocad.





Existing condition survey of home for a home renovation. The drawings were created using Revit R22.








Existing condition survey of an investment property. The drawings were created using Autocad.





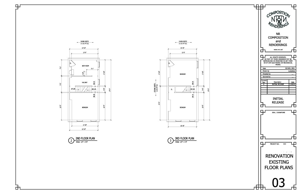
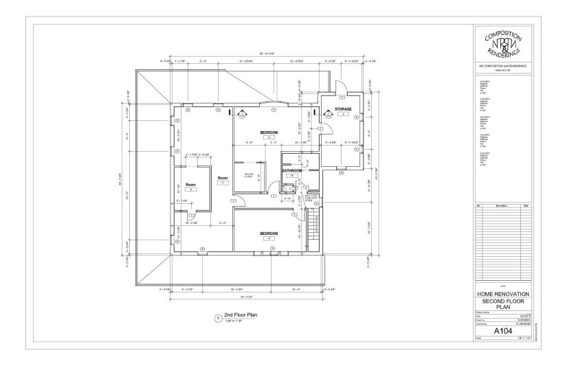
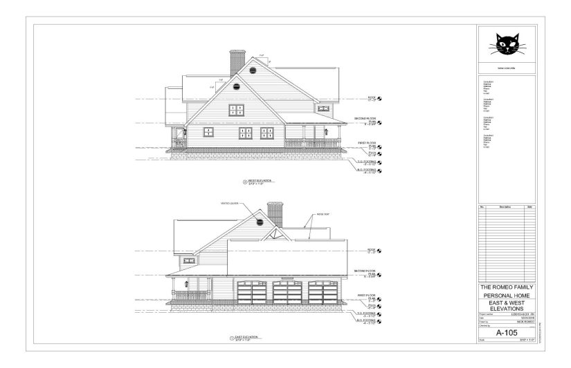
Existing condition survey was completed of the entire home. The drawings were then created by use of Revit R22.




Existing condition survey which required size of bedrooms, sizes of beds, exits (with signage), smoke / carbon dioxide detectors, bathroom layouts, and fire extinguishers.






Interior designs were drawn using Revit and AutoCAD. All components (except the ceiling fan and living wall) are custom created in AutoCAD. The photos and art on the walls were conceived, built and executed by me.





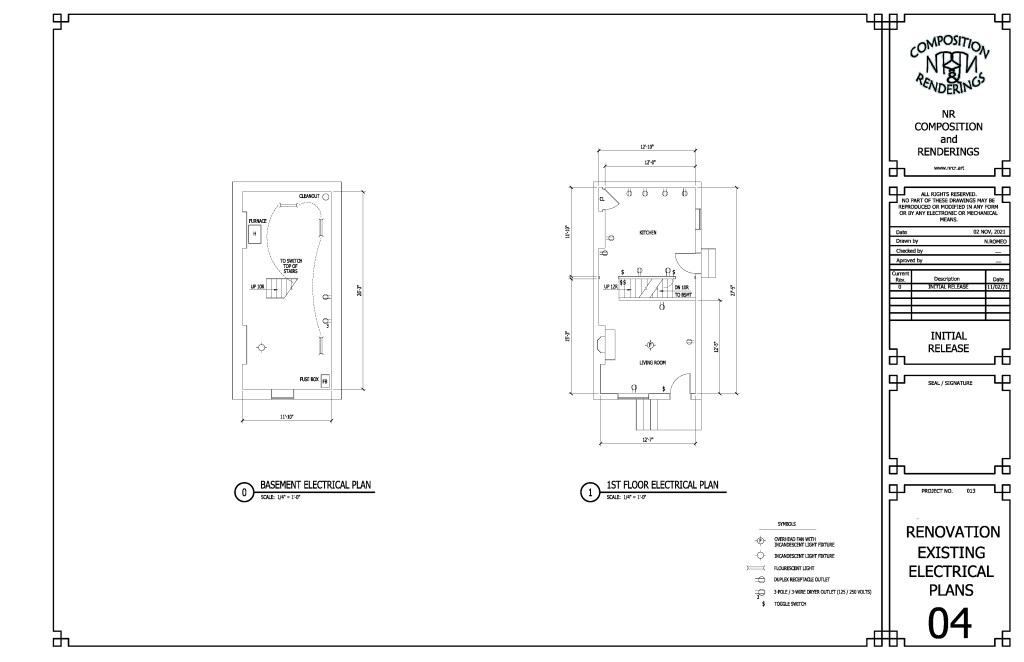
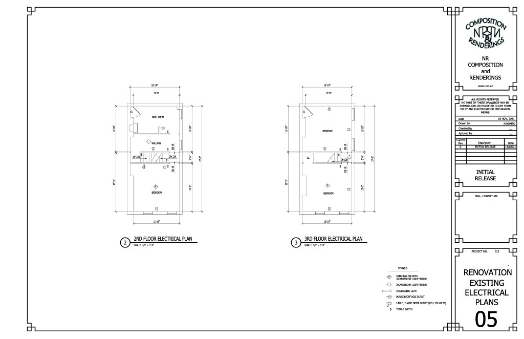
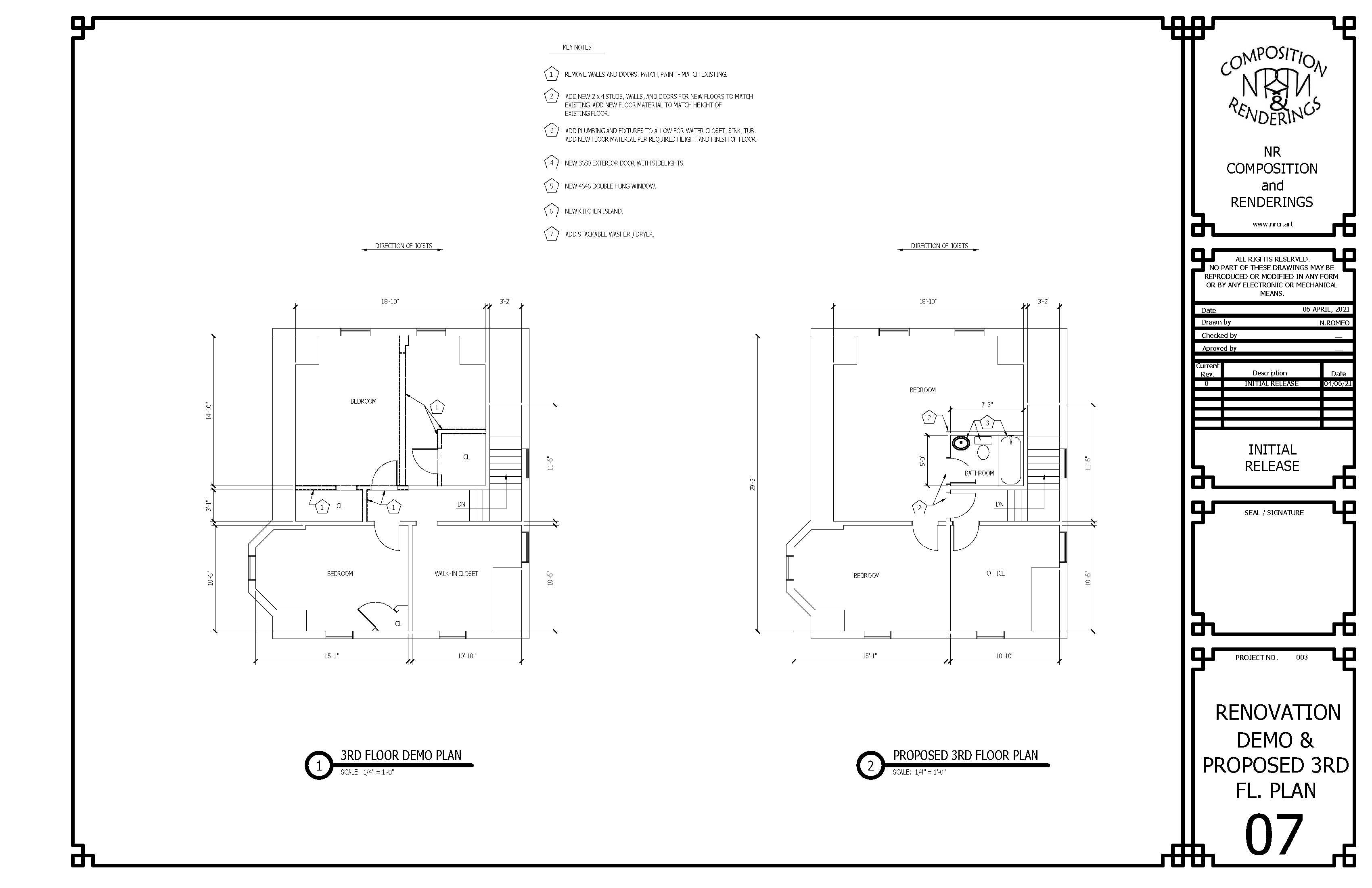
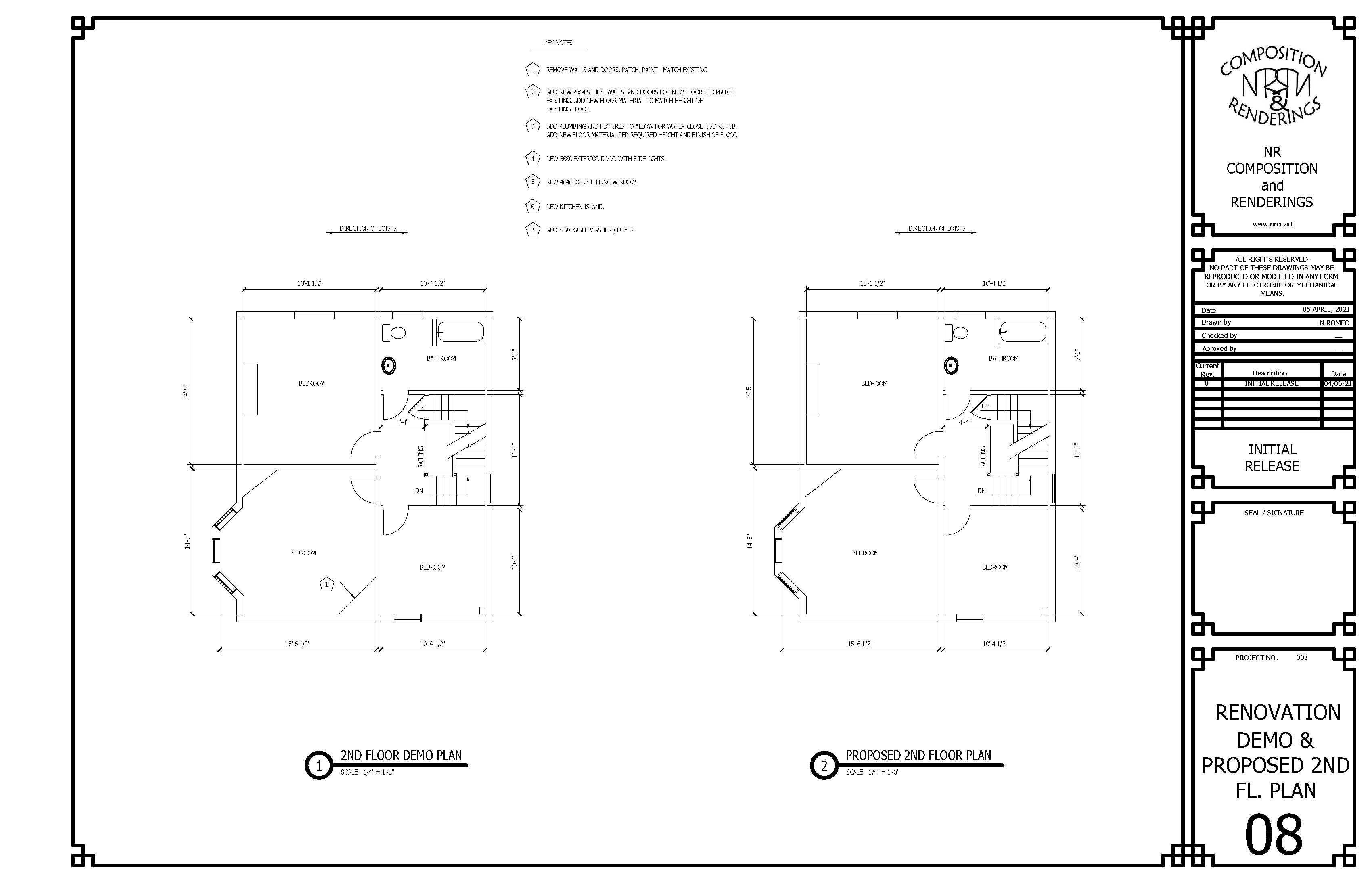
Home renovation containing the existing electrical and floor plans along with the demo and proposed renovation upgrades.









This project was drawn based on existing conditions, and is intended for layout and documentation purposes. Created roof finishes for the entire home (wallpaper, paint flooring, etc). All of the pictures on the walls contain images of my photography/artworks.







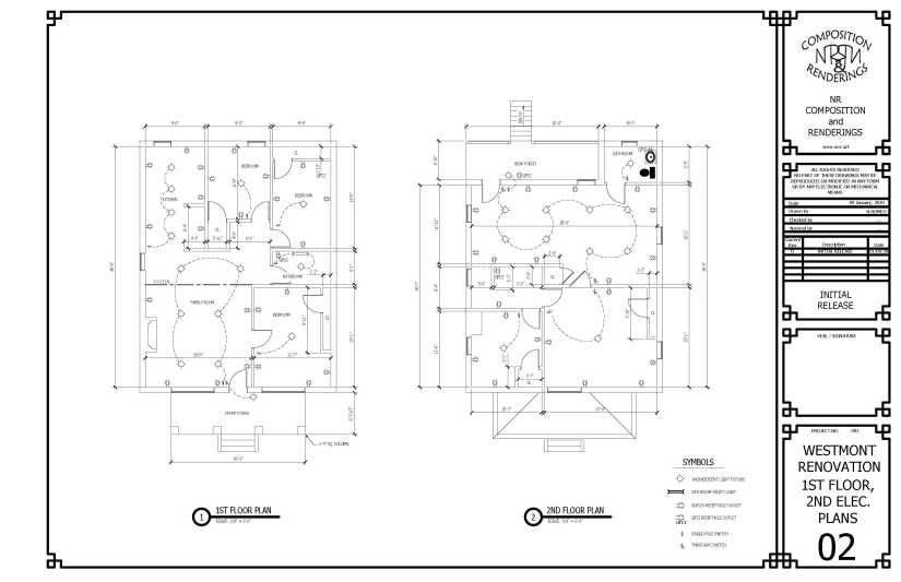
Home renovation consisting of the existing electrical and floor plans along with a wall section.






Home addition project utilizing Sketup and Revit.







Home addition using Revit software. Second floor, front porch and new roof design.






College final project. Drawn using Revit. Custom created, columns, railings, banister and stained glass.






